Ash Grove
Five bedroom detached home with double garage and home office
Ash Grove is a stunning new Cotswold stone home set back on Shutter Lane in Gotherington. Built to the highest specification, it has been designed with luxury and style in mind.
Ash Grove
Five bedroom detached home with double garage and home office
Ash Grove is a stunning new Cotswold stone home set back on Shutter Lane in Gotherington. Built to the highest specification, it has been designed with luxury and style in mind.
Ash Grove
Five bedroom detached home with double garage and home office
Ash Grove is a stunning new Cotswold stone home set back on Shutter Lane in Gotherington. Built to the highest specification, it has been designed with luxury and style in mind.
Floor plans

Ground Floor
Family / Dining
8.96m x 3.90m / 29'3 x 12'7"
Utility Room
6.26m x 4.12m / 20'8" x 13'5"
Living Room
5.70m x 4.01m / 18'7" x 13'1"
Study / Play
5.66m x 4.24m / 18'5" x 13'9"
Kitchen / Breakfast
8.06m x 4.23m / 26'4" x 13'8"

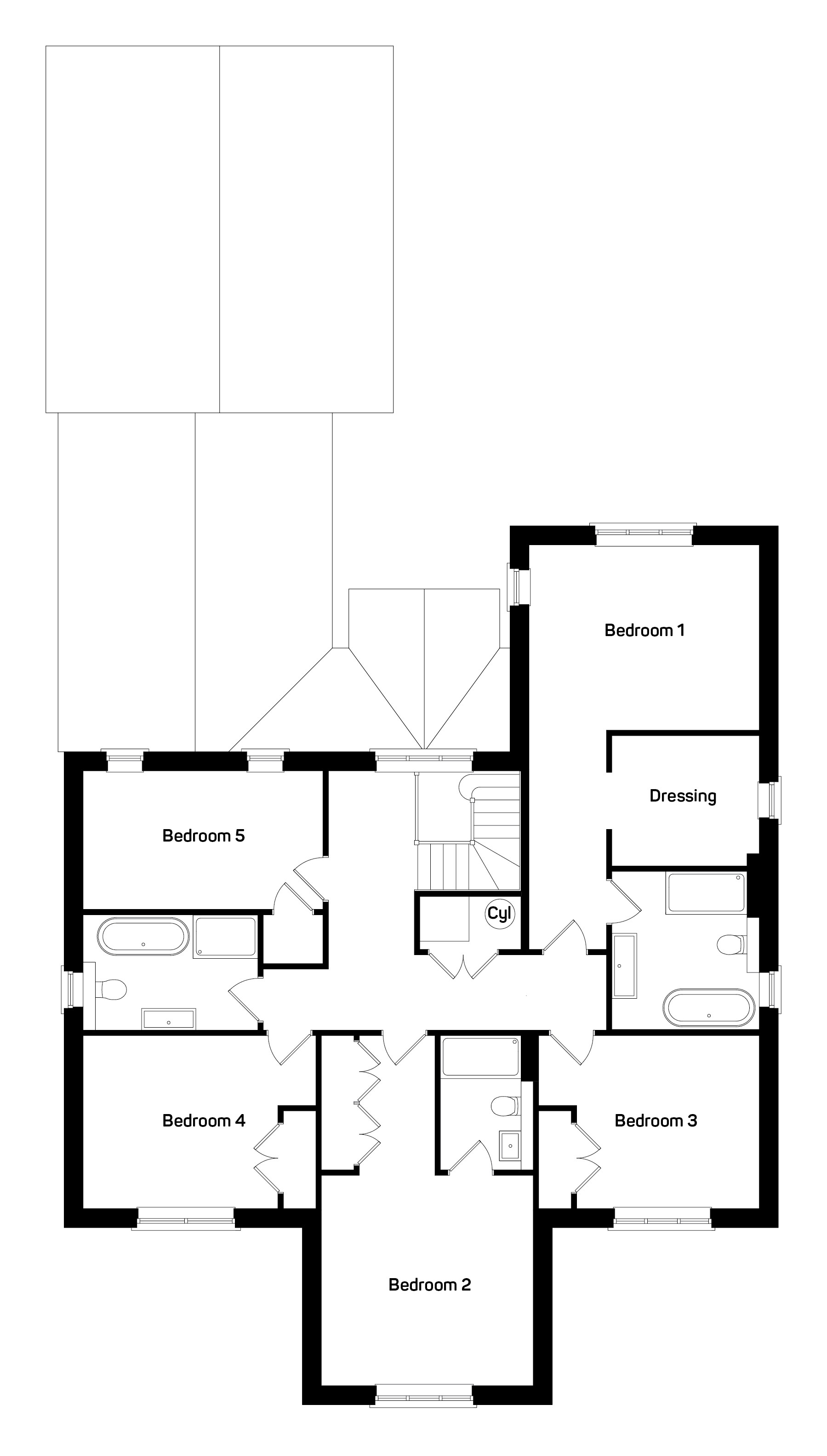
First Floor
Master Bedroom with Dressing Area
4.24m x 3.40m / 13'9" x 11'1"
Bedroom 2
6.43m x 3.90m / 21' x 12'7"
Bedroom 3
4.05m x 3.17m / 13'2" x 10'4"
Bedroom 4
4.26m x 3.17m / 13'9" x 10'4"
Bedroom 5
4.40m x 2.54m / 14'4" x 8'3"
Floor plans

Ground Floor
Family / Dining
8.96m x 3.90m / 29'3 x 12'7"
Utility Room
6.26m x 4.12m / 20'8" x 13'5"
Living Room
5.70m x 4.01m / 18'7" x 13'1"
Study / Play
5.66m x 4.24m / 18'5" x 13'9"
Kitchen / Breakfast
8.06m x 4.23m / 26'4" x 13'8"

First Floor
Master Bedroom with Dressing Area
4.24m x 3.40m / 13'9" x 11'1"
Bedroom 2
6.43m x 3.90m / 21' x 12'7"
Bedroom 3
4.05m x 3.17m / 13'2" x 10'4"
Bedroom 4
4.26m x 3.17m / 13'9" x 10'4"
Bedroom 5
4.40m x 2.54m / 14'4" x 8'3"
Floor plans

Ground Floor
Family / Dining
8.96m x 3.90m / 29'3 x 12'7"
Utility Room
6.26m x 4.12m / 20'8" x 13'5"
Living Room
5.70m x 4.01m / 18'7" x 13'1"
Study / Play
5.66m x 4.24m / 18'5" x 13'9"
Kitchen / Breakfast
8.06m x 4.23m / 26'4" x 13'8"

First Floor
Master Bedroom with Dressing Area
4.24m x 3.40m / 13'9" x 11'1"
Bedroom 2
6.43m x 3.90m / 21' x 12'7"
Bedroom 3
4.05m x 3.17m / 13'2" x 10'4"
Bedroom 4
4.26m x 3.17m / 13'9" x 10'4"
Bedroom 5
4.40m x 2.54m / 14'4" x 8'3"
make an enquiry
Drop us an email using the form below and we’ll get back to you as soon as possible.
Clicking ‘submit’ confirms you have read our Privacy Policy and you are happy for us to keep in touch with you.
Or call us today on 01242 677 150
T. 01242 677 150 | E. enquiries@centaurhomes.co.uk
Visit Centaur Land
Centaur Homes Ltd, Registered in England and Wales, Company number 05709567
Registered office address: Willow End, Stoke Orchard Road, Bishops Cleeve, Cheltenham, Gloucestershire, England, GL52 7DG, United Kingdom

T. 01242 677 150 | E. enquiries@centaurhomes.co.uk
Visit Centaur Land
Centaur Homes Ltd, Registered in England and Wales, Company number 05709567
Registered office address: Willow End, Stoke Orchard Road, Bishops Cleeve, Cheltenham, Gloucestershire, England, GL52 7DG, United Kingdom

T. 01242 677 150
E. enquiries@centaurhomes.co.uk
Visit Centaur Land
Centaur Homes Ltd
Registered in England and Wales Company number 05709567
Registered office address:
Willow End, Stoke Orchard Road Bishops Cleeve, Cheltenham Gloucestershire, England, GL52 7DG
United Kingdom



